Work
Publications
About
Adriana Davis
Architectural Designer
Work
Publications
About
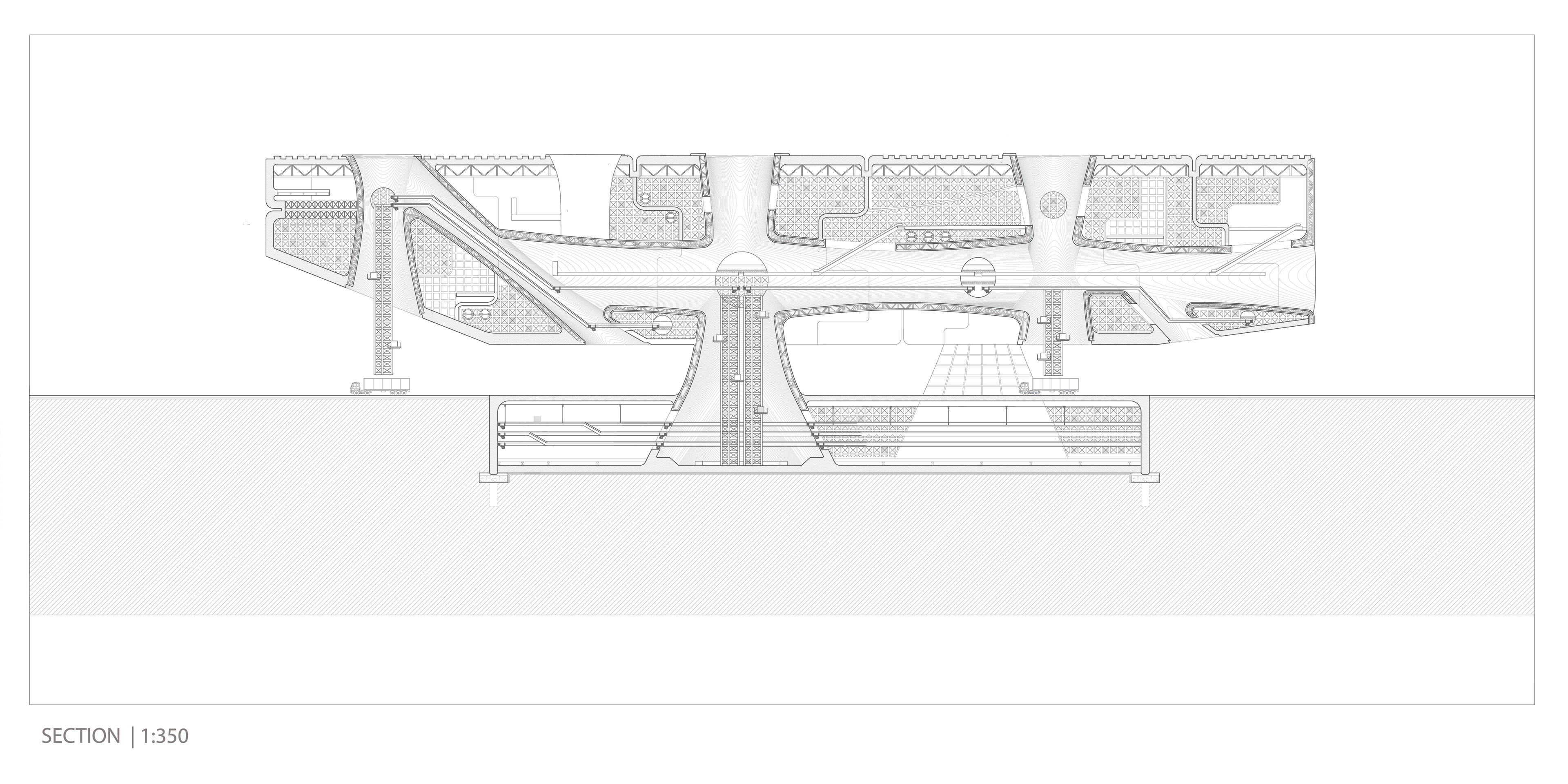
F u t u r e A i r p o r t
(In collaboration with Wenhao Xu)
Published on Weitzman MSD-AAD Student Gallery
↑
Back to Top